The Barge
Built in Friesland Holland in 1931
Luxury hotel barge Colibri
(4 passengers)
Colibri is a classic Dutch Luxemotor canal barge, built in Friesland Holland in 1931, and lovingly converted from her cargo carrying days into a luxury hotel barge. Colibri has been completely refitted and on the splendid foundations we have added a touch of luxury and an air of relaxed elegance. Each winter we continuously make improvements to Colibri, up front and behind the scenes, and we like to think that the level of comfort aboard is always improving.
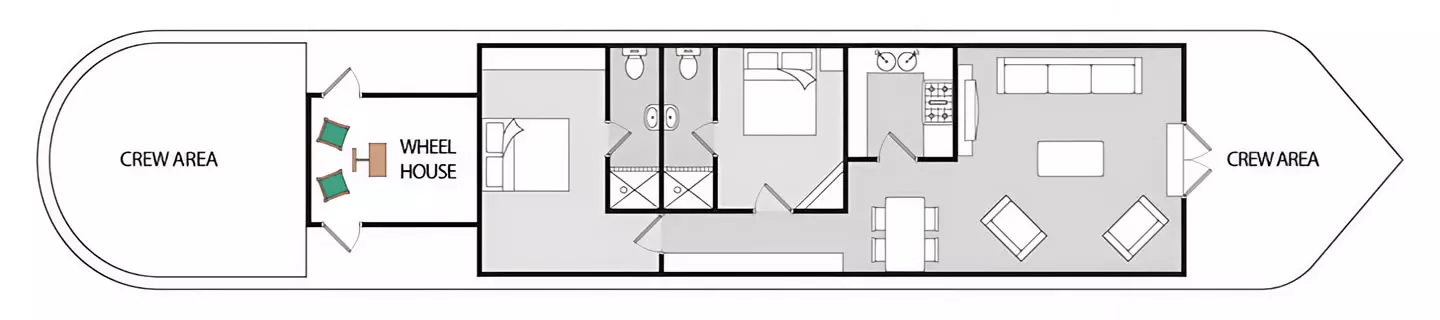
Barge dimensions
Colibri is 27 meters in length and 5 meters in width. Despite her generous size Colibri takes only four guests, thus affording space and maximum comfort to all parties. The interior is air conditioned to ensure your well-being.
Accommodation
Sleeping accommodation is in two generous staterooms with walk around beds and modern en-suite bathrooms. The beds are European king-size, or if prefered, two twin beds to afford flexibility to guest's arrangements. The cabins are furnished with French oak furniture with ample hanging space and drawers to unpack into and feel at home. The linens are of luxurious quality Egyptian cotton, with silk duvets for comfortable summer nights. The bathrooms are modern with large showers, heated towel rails, hairdryers and bathrobes.
Facilities
The dining area and salon are light and spacious, the perfect place to relax and feel at home, read a book, or chat over dinner and a glass of wine. There is an Ipod friendly music system with speakers above and below decks.
On deck there is the canopied wheelhouse, where you may be shaded and chat with Earl and be involved in all aspects of cruising the canals.
The large deck space allows for comfortable al fresco dining enhanced by our canopy umbrella, and if needed a canopy heater, for perfect comfort throughout the season. All meals are served on beautiful Villeroy & Boch crockery, accompanied by elegant crystal glasses to enhance the dining experience. There are lounge chairs with individual parasols to relax in, cooled by the gentle breeze as we cruise along. Take the chance to relax and find yourselves in awe of the scenery as we pass by ancient villages and vineyards.
Plus our chauffeured luxury air-conditioned people mover to take you on excursions so that you can take in the sites of the area surrounding the canal.
Come be enveloped in the romance of France and her waterways.





